万科雁鸣湖西安【西安商铺】/首页网站/户型展示/建筑面积/位置
【来源:搜狐焦点】
西安「万科雁鸣湖」
服务热线:029-68866626(咨询中心)
项目地址:029-68866626(致电发送详情地址)
基本信息
绿化率: 37.71%
容积率: 2
占地面积: 约88亩
建筑面积: 239,379㎡
总户数: 2855户
车位比: 1:1.2
物业费: 住宅:2.2元/m²/月
车位: 2001 (地上:113 个 地下:1888个)
物业公司: 西安市万科物业服务有限公司
楼盘价格: 参考均价 14500 元/㎡ 周边房价解读
物业类型: 洋房 普通住宅
区域板块: 曲江
产权年限: 70年
项目特色: 景观居所 品牌房企 公园美宅 改善好房
开发商: 西安宜伽房地产开发有限公司,西安滨湖时代商业管理有限公司
楼盘地址: 陕西省西安市浐灞生态区雁鸣湖浐河西路12号
【项目区位】
项目位于浐灞生态区雁鸣湖板块,不仅坐拥曲江成熟生活圈,同时享有浐灞生态环境,是主城湖居难得的双稀缺作品。项目共分三期开发,一期及二期首批次已售罄,此次预计推售三期。

西安大力建设国际中心城市,实施“南控、北跨、西融、东拓、中优”空间发展战略,城市向东拓展发展是大趋势。曲江发展饱和之后,向东外延,东三环内的区域,承接曲江上游优质配套和产业资源,自身版块交织着西安文化产业大走廊、科创大走廊、对外开放通道和浐灞生态区,东侧还有西安东站和雁鸣湖公园正在建设,正在成为曲江繁华下一站,也是全城买房置业优选地。

西安东站,接入了西十、西康和西延等高铁,成为西安“米字型”高铁最关键环节。从各项指标和线路上来看,西安东站创造了多个记录,成为全国特大型铁路综合交通枢纽之一。从西安整体战略布局上来看,东部是“国际文化交流轴”,云集了众多国家级工程和多个城市功能片区。

西安东站的建设,将成为“东轴”全新的发展引擎。西安东站建成后将直接推动西安东南片区发展。东南部区域,也将以全功能的西安东站枢纽为核心,重构交通距离和时间。并辐射周边区域,促进区域的协调发展。

【项目配套】
1、交通:5号线一期马腾空站(已开通),距离项目约4.8公里;在建的5号线二期雁鸣湖站,距离项目约3公里;未来8号线与5号线在马腾空交汇,便捷通达高新、曲江、浐灞等;公共交通72、159、737(马腾空站),悦享悠然生活。

两纵:浐河西路、长鸣路;两横:南三环、绕城高速,无忧自驾出行;项目西侧杜陵邑南路已经开通,从雁鸣湖到曲江管委会约 2.2 公里,便捷通达曲江核心。

距项目约2.8公里的西安东站,规模远超西安北站,是西安最大的铁路客运枢纽站之一,著有世界东站之称,建成后将成为西安东南片区的重要枢纽,未来将形成多种交通方式于一体的特大型综合交通枢纽,可以预见,西安东站片区势必将成为西安东南片区发展的超级引擎!

2、教育:距项目最近的浐灞丝路国际学校,距离项目约6-7公里的西安曲江德闳学校、康桥国际学校西安曲江校区两大国际学校,满足多样教育需求。
3、医疗:西北妇女儿童医院、曲江新区医院(在建)、唐都医院、西京医院,医疗配套完备,为家人保驾护航。

4、商业:项目自身规划约1.1万方风情商业街,满足日常所需;大悦城、大唐不夜城、西安新乐汇、曲江银泰等大雁塔商圈,满足多维消费需求;曲江创意谷、雁翔广场,满足社交型消费需求;雁鸣湖商圈:可乐城(在建)、卧龙约360亩商业用地,3公里大型综合商圈。

5、生态:项目不仅可享一线雁鸣湖湖景景观,同时项目西侧西安植物园、中国唐苑、杜陵国际遗址公园三园串联环绕,三大公园共占地15350亩,相当于10个曲江池遗址公园,是都会核心不可再生的城市绿肺。东侧浐河与白鹿原环抱,享受”一湖一河三公园”的难得生态环境。

浐河,“八水绕长安”八水之一,素有“玄灞素浐”之称,集历史底蕴与生态资源于一体;

雁鸣湖,纯天然生态湖、西北最大的湿地公园、国家级湿地保护区、水鸟栖息地、4A 级景区,水域面积达1200余亩,是人造湖南湖的1.2倍。
西安植物园,占地约300亩,相当于60个标准足球场大小,是西北地区引种保存植物种类最多的植物园。

中国唐苑,是“西安万亩都市森林生态园”的重要组成部分,占地约2000亩,以盆景艺术享誉海内外,植入两万多棵几百年到上千年的古树,收集数以万计的奇石、巨石。
杜陵国家遗址公园,与项目一路之隔,占地约8.7平方公里(13050亩),整体规划实现与生态结合的遗址保护方式,将历史遗迹浏览与休闲功能良好结合。

6、高端人居板块布局。城市级配套落位兑现及生态环境加持,推升全新的城市高端宜居板块。以唐苑为中心,融创曲江印、玫瑰园、流光云谷、云松间,即将入市的星河湾等,西安近半的豪宅环绕排布。未来在这个兼具城市配套、珍稀环境、历史底蕴的大面积高端改善产品片区,万科雁鸣湖约110-135㎡产品,成为中等面积品质改善需求客户首选。

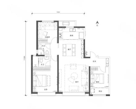
户型展示:



【万科雁鸣湖】售服务热线TEL:029-68866626【咨询中心】
了解最新优惠折扣价格——请拨打服务热线
