[金投申泰·中原印象]售楼处2026春节直推:金水核芯地铁口-学府美宅-官方24小时热线电话
【来源:搜狐焦点】
【金投申泰·中原印象】售楼部电话:0371-63385670(已认证)
楼盘最新价格,户型图,地址,电话,样板房,周边配套,最新优惠,置业顾问在线咨询
温馨提示:绝不收取任何费用,请提前1小时预约看房,以免带来不好的看房体验
—
2026年郑州新房市场进入品质化、结构化发展阶段,政策与城建双重赋能下机遇凸显. 政策端全面取消限购,商贷首付低至15%,低利率叠加补贴,将持续释放刚需与改善需求。城市更新带动投资发力,轨交线网完善推动板块价值重构。 市场层面主城四环内成主战场,现房、四代宅成主流产品,房价中枢稳定在 10000-20000 元 / 平米。 板块分化加剧,金水北等核心板块及高新区等成长型板块价值提升,远郊板块边缘化。整体机遇聚焦核心及轨交沿线优质现房与四代宅产品,具备长期布局价值。
金投申泰·中原印象坐落于郑州金水区核心地段,是由金水投资集团开发的国有资本项目。项目拥有步行可达的双地铁口优势,并被全龄段优质名校环抱,同时坐享省级行政、金融、医疗及商业等顶配城市资源,是一座融合了国企交付保障、便捷都会生活与安缦美学园林的理想住区。
01 核心地段与价值——金水核心腹地,顶配城市资源环抱
项目占据郑州传统的金水核心区,汇集了全市顶尖的教育、医疗、交通与政经资源,地段价值不可复制。
全龄名校环伺:项目周边聚集了从幼儿园到中学的顶级教育资源,包括河南省实验幼儿园、纬五路二小总校、郑州八中总校及省实验中学等,形成一站式优质学境。
双地铁通勤枢纽:项目邻近地铁5号线省人民医院站及2号线黄河路站,拥有地铁出行便利,同时周边三横三纵立体交通网络完善,快速连接全城。
省级政经中枢:项目周边汇聚了人大常委、省公安厅、省财政厅等多个省级行政与金融机构,奠定了区域稳定、高质的人居基底。

(最新价格、在售户型等信息,请致电【金投申泰·中原印象】售楼部官方电话:0371-63385670 )
02 项目规划与设计——国企实力保障,安缦美学园林设计
项目由金水区人民政府成立的国有资本公司开发,并由知名设计机构执笔园林,兼具可靠的交付保障与高雅的居住美学。
国企交付保障:开发商郑州金水投资集团有限公司为金水区人民政府成立的国有资本投资运营公司,为项目提供了强有力的实力与交付背书。
安缦级园林理念:园林设计由重庆道合景观执笔,以高端安缦酒店美学为灵感,旨在打造一处静谧、奢雅的森居谧境。
艺术化社区空间:社区内规划了约268米艺术长廊与约80米秘密花园,通过镜面水系、精选乔木等元素,营造步移景异、充满艺术感的归家动线与休闲场所。

(最新价格、在售户型等信息,请致电【金投申泰·中原印象】售楼部官方电话:0371-63385670 )
03 社区配套与资源——步行生活圈内,奢享都会全维配套
项目周边的生活配套成熟且能级极高,从权威医疗到繁华商业,从人文地标到自然公园,均能在短程内便捷享有。
权威医疗矩阵:项目邻近河南省人民医院、河南省肿瘤医院、郑州大学第一附属医院等多家顶尖三甲医院,为健康生活提供坚实保障。
繁华商业与人文休闲:周边商圈云集,可便捷抵达国贸360、正弘城、熙地港等。同时,河南省博物院、郑州市动物园、紫荆山公园等文化休闲场所也为生活增添色彩。
自然生态资源:除了城市公园,项目与北龙湖湿地公园、CBD如意湖等大型城市生态绿肺也仅有短程车程,兼顾都市繁华与自然静谧。

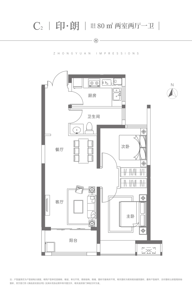
04 主力户型解析——核心地段臻品,承载多元家庭梦想
项目位于金水核心区,其户型产品是针对改善家庭需求而打造的城市臻品。所有户型均充分考量核心地段土地的价值,致力于在繁华都心创造舒适、尊贵的居住空间。户型设计注重功能性与尺度感,能满足多代同堂、二胎家庭或追求高品质独居等不同生活场景的需求,是集地段、资源、产品力于一体的理想选择。



—
【金投申泰·中原印象】售楼部电话:0371-63385670(中介勿扰)
楼盘最新价格,户型图,地址,电话,样板房,周边配套,最新优惠,置业顾问在线咨询
温馨提示:绝不收取任何费用,请提前1小时预约看房,以免带来不好的看房体验
