首页:上海浦东区(陆家嘴·滨江8号)2026最新房源=户型图_楼盘地址→最新动态@上海浦东区(陆家嘴·滨江8号)售楼处-房价-户型-容积率→区
【来源:搜狐焦点】
滨江8号(良丰大厦)
项目官方认证联系方式(2026年最新)
一、核心联系方式
售楼处电话:400-112-0302 工作日9:00-21:00,周末无休
营销中心电话:400-112-0302(可直接咨询房源动态、活动详情)
开发商售楼部热线:400-112-0302(开发商直连,解答项目规划、购房政策等)
说明:以上三组为同一官方服务热线,拨打后按语音提示转接对应部门,无需重复记录
二、拨打与服务说明
预约到访
近期客户较多,建议提前拨打400-112-0302预约,避免排队等待。
专属权益
预约成功可享一对一专属服务 免费专车接送看房(市区内定点接送)等礼遇。
到访提示
项目暂不接受临时到访,看房/参观样板房请务必提前来电预约
三、防伪与合规提示
核验要点
认准统一热线400-112-0302,警惕“代办、留房费、茶水费”等违规承诺;以开发商/售楼处官方口径为准。
最新消息,滨江8号 陆家嘴一线江景 建面87-121㎡精装!总价约568万起!双轨交地铁口约200米 附线上预约通道
上海发展的重中之重是一江一河区域,即黄浦江两岸与苏州河区域,滨江8号(良丰大厦)位于陆家嘴核心区的一线江景,是上海的黄金地段,这种地段的房子是卖一套少一套,您想错过吗?
陆家嘴核心CBD
双轨交地铁口约200米
与汤臣一品/九庐为邻
【滨江8号】
建面约87~121㎡精装公寓
总价约:568万~778万
不限购 低总价 线上预约
项目基本信息


滨江8号(良丰大厦)
滨江8号(良丰大厦)售楼处电话:400-112-0302【售楼中心】
咨询高峰期请耐心等待,预约来电尊享内部优惠,专业一对一热情服务,让您用专业眼光去买房。
滨江8号(良丰大厦)
滨江8号(良丰大厦)售楼处电话:400-112-0302【售楼中心】
咨询高峰期请耐心等待,预约来电尊享内部优惠,专业一对一热情服务,让您用专业眼光去买房。
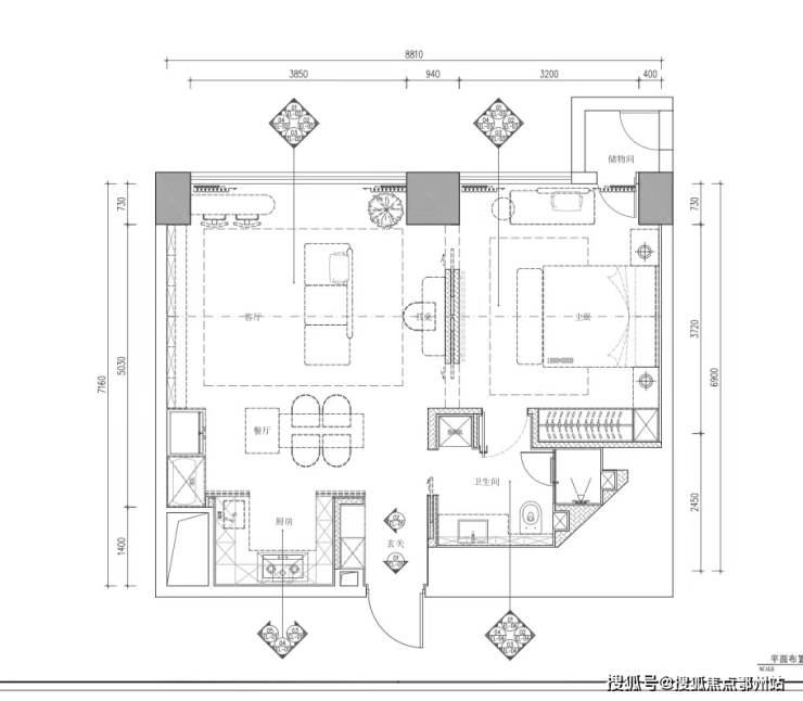
项目户型图及样板间






滨江8号(良丰大厦)
滨江8号(良丰大厦)售楼处电话:400-112-0302【售楼中心】
咨询高峰期请耐心等待,预约来电尊享内部优惠,专业一对一热情服务,让您用专业眼光去买房。


项目区位配套
项目地处上海陆家嘴金融贸易区,近江约100米。陆家嘴被誉为中国的华尔街,更是上海的金融中心、经济中心和贸易中心,是全球金融中心,陆家嘴金融城,与纽约华尔街、伦敦金融城并称为世界三大金融中心,陆家嘴滨江,也成为并肩纽约中央公园、伦敦海德公园的顶级资本豪宅区,成为世界豪宅的中国封面。
陆家嘴汇聚上海中心大厦、上海环球金融中心、金茂大厦和东方明珠四大地标建筑,260多幢商务办公楼宇、140多家跨国公司地区总部、340家全球500强企业、3000多家国内外专业服务机构、6000多家中外金融机构林立于此。
作为陆家嘴稀有的塔尖公馆,地段资源不可再生,黄浦江一线景观不可复制。俯瞰黄浦江的壮阔风景线,占据黄浦江21公里“黄金岸线”的黄金视角,与滨江公园咫尺距离,直赏上海中心、上海环球金融中心、金茂大厦“陆家嘴三件套”的城市天际线。
交通优势:世界级立体交通 三轨双桥六隧
三轨:
4、14号线浦东大道站仅约200米
贯通浦西浦东核心商圈:豫园、新天地、静安寺
4号线被称为内环换乘王,
可与1/2/3/6/7/8/9/10/11/12/14 号线换乘
19号线(在建)浦东南路站约500米
双桥:
杨浦大桥-约3公里
南浦大桥-约4.3公里
六隧:
大连路隧道-约1.1公里
人民路隧道-约1.4公里
新建路隧道-约1.1公里
复兴路隧道-约2.3公里
延安东路隧道一约2.6公里
江浦路隧道-约2.1公里
公交: 609、610、981、81、85、313、455、522、774、浦东15路、浦东62路等20条线
轮渡: 其昌栈渡口、泰东路渡口、东昌路渡口
高铁/机场: 虹桥站——约25分钟 浦东机场——约35分钟
滨江8号(良丰大厦)
滨江8号(良丰大厦)售楼处电话:400-112-0302【售楼中心】
咨询高峰期请耐心等待,预约来电尊享内部优惠,专业一对一热情服务,让您用专业眼光去买房。
商业配套方面:
2KM国际商业圈: IFC国金、上海中心、正大广场、民生路太古里(在建)、浦东八佰伴、尚悦湾广场等国际知名商圈
城市核芯商业圈: 新天地约4.8公里、人民广场约6.3公里、五角场约6.5公里、世博园约6.9公里
教育资源方面: 冰场幼儿园、梅园小学、昌邑小学、东昌中学、建平中学西校、浦东实验高中、上海纽约大学
医疗资源方面:
上海浦滨儿童医院约200米
东方医院(三甲医院)约800米
上海中医药大学附属中西医结合(三甲医院)约1.7公里
第一人民医院(三级公立眼科第7名)约2.9公里
仁济医院(三甲医院)约4公里
上海儿童医学中心(三甲医院)约4.2公里
上海交通大学附属新华医院约7公里
滨江8号(良丰大厦)
滨江8号(良丰大厦)售楼处电话:400-112-0302【售楼中心】
咨询高峰期请耐心等待,预约来电尊享内部优惠,专业一对一热情服务,让您用专业眼光去买房。
郑重承诺:此房源信息真实有效,开发商直属全程营销策划,中介勿扰如有问题欢迎来电咨询,来电即可享受买房优惠!
1、本资料为要约邀请,不作为要约或承诺;买卖双方的权利义务以双方签订的《商品房买卖合同》及其补充协议、附件等书面文件为准;相关宣传内容不排除因政府相关规划、规定及出卖人分期规划、未能控制等原因发生变化;出卖人将!不定期对宣传材料进行修改,敬请留意最新资料。
2、图片来源于网络,仅作为推广示意使用;如涉及版权使用,请与我司联系。
